Porzione di bifamiliare in vendita

Codroipo, Viale F.A. Duodo
€ 145.000
5 locali 5 locali
248 Mq 248 Mq
1 bagno 1 bagno

Porzione di bifamiliare in vendita

Codroipo, Viale F.A. Duodo

Descrizione annuncio

Tecnocasa la più grande rete di intermediazione in Europa con 2807 punti vendita in Italia e 4022 nel mondo vi propone

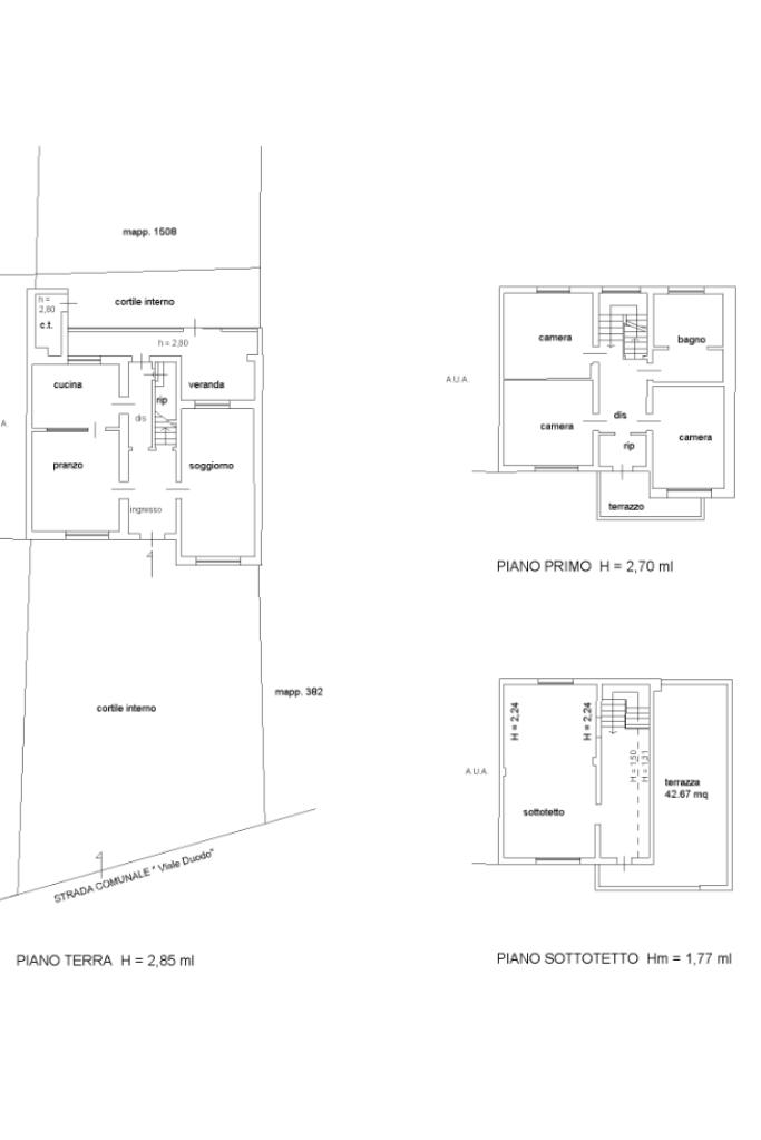
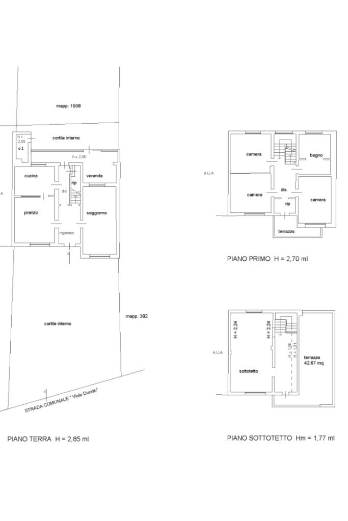
Proponiamo una porzione di bifamiliare completamente da ristrutturare, situata a ridosso del centro di Codroipo, in posizione comoda e ben servita.

L’abitazione si sviluppa su più livelli e offre spazi ampi e ben distribuiti, ideali per chi desidera personalizzare la propria casa secondo gusti ed esigenze.

Al piano terra troviamo il soggiorno, la cucina abitabile e la sala da pranzo, ambienti separati che garantiscono funzionalità e vivibilità, oltre a un pratico ripostiglio.

Dal disimpegno si accede alla scala interna che conduce al primo piano, dove sono presenti tre camere da letto spaziose e un bagno di comode dimensioni.

Dal corridoio del piano notte si ha accesso a una terrazza, che rappresenta un piacevole sfogo esterno.

Proseguendo tramite un’ulteriore rampa di scale si raggiunge la soffitta abitabile, uno spazio versatile che può essere utilizzato come studio, area hobby o locale aggiuntivo.

La proprietà è completata da un giardino sia anteriore che posteriore; in quello sul retro si trova il box auto.

Mostra tutto

Nelle vicinanze

Trasporto pubblico Trasporto pubblico
Codroipo
Codroipo
1,2 Km
Codroipo - Viale Duodo (Ospedale)
Codroipo - Viale Duodo (Ospedale)
260 m
Codroipo - Viale Duodo (Coop)
Codroipo - Viale Duodo (Coop)
560 m
Scuole Scuole
ITC J. Linussio
940 m
Liceo Scientifico Marinelli
980 m
Farmacia Farmacia
Toso dr. Lorenzo
670 m
Cannistraro
670 m
Farmacia
1,1 Km
Bp S.N.C Di Alessandra Forgiarini E Roberto Fresco
1,8 Km
Ospedali Ospedali
Distretto Sanitario Codroipo
350 m
Supermercati Supermercati
SuperOne
540 m
Coop
1,2 Km
Cadoro
1,5 Km
Lidl
1,9 Km
Eurospar
2,0 Km
Negozi Negozi
PasseParTout idea moda
960 m
Negozi
1,3 Km
Bar Bar
Shack
390 m
Giornale & Caffè
640 m
Osteria La' di Galas
850 m
Enoteca Angolo delle Specialità
1,3 Km
da Frusine
2,4 Km
Ristoranti Ristoranti
Pizzaria Trattoria Al Passeggio
30 m
Trattoria Alle Risorgive
840 m
Il Piron dal Re
1,1 Km
Ali Babà
1,1 Km
Lo Spirito Giusto
1,2 Km
Mostra tutto

Caratteristiche

Rif.:
61164419
Piano:
2 di 2 (Piano su più livelli)
Box:
1
Posti auto:
2
Terrazzi:
2
Camere da letto:
3
Mostra tutto
Prezzo Prezzo
€ 145.000
Rata mutuo Rata mutuo
€ 683 / mese
Spese annue Spese annue
€ 0
Proponi il tuo prezzoProponi il tuo prezzo

Classe Energetica

G
G
G
G
G
G
G
G
G
EP globale rinnovabile:
215.87 kW h/m² anno
EP invernale del fabbricato:
EP estiva del fabbricato:
Anno di costruzione:
1930
Riscaldamento:
Autonomo
Tipo impianto:
A radiatori
Tipo alimentazione:
Metano

Ti interessa visionare l'immobile?

Fissa un appuntamento  Fissa un appuntamento

Richiedi informazioni

Clicca su Leggi per aprire l'informativa
* Questi campi sono obbligatori

Calcola il tuo mutuo

Semplice e senza impegno
Anticipo

( % )
Mutuo

( % )

pochi semplici passi

inserisci i tuoi dati
Questionario completato
Grazie per aver richiesto un appuntamento senza impegno con un nostro Consulente del Credito e Assicurativo.

Hai inserito correttamente tutti i dati necessari e a breve riceverai una e-mail con un link da convalidare per inviare i tuoi dati.
Affiliato
Quadrupio Srl
P.zza Dante Alighieri, 11 33033 Codroipo (UD)

Il nostro staff


  • Emrah Karamaleski
    Collaboratore

  • Ajdin Traljesic
    Collaboratore

  • Suad Toromanovic
    Affiliato
P.zza Dante Alighieri, 11 33033 Codroipo (UD)
Zona: Codroipo-Bertiolo-Camino al Tagliamento-Varmo-Rivignano-Sedegliano-Flaibano
Mostra su mappa
Affiliato
Quadrupio Srl
P.zza Dante Alighieri, 11 33033 Codroipo (UD)

2026 Tecnocasa Franchising S.p.A. - P. IVA 08365160152 - Via Monte Bianco 60/A 20089 Rozzano (MI). Ogni agenzia ha un proprio titolare ed è autonoma. Privacy policy | Policy utilizzo | Cookie policy