Villa singola in vendita

Codroipo, Via Tita Marzuttini
€ 518.000
5 locali 5 locali
518 Mq 518 Mq
6 bagni 6 bagni

Villa singola in vendita

Codroipo, Via Tita Marzuttini

Descrizione annuncio

Tecnocasa la più grande rete di intermediazione in Europa con 2807 punti vendita in Italia e 4022 nel mondo vi propone:

Questa elegante villa singola si trova in una zona tranquilla e residenziale del Comune di Codroipo in una strada privata senza uscita, a pochi passi dai principali servizi. Edificata su un lotto di 1500 mq, la proprietà si sviluppa su due livelli fuori terra e uno seminterrato. L’ingresso è garantito da due cancelli carrai e un cancello pedonale, con accesso all’abitazione tramite una porta blindata.

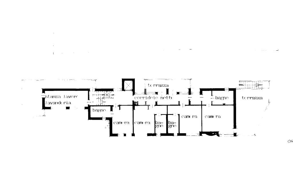
Al suo interno, un disimpegno separa l’ampio e luminoso soggiorno, caratterizzato da una parete vetrata che offre un affaccio panoramico, e la stufa a pellet, dalla cucina abitabile su misura, dotata di una pratica penisola. La cucina è collegata al soggiorno, che ospita anche una zona pranzo. Dal soggiorno si accede a uno studio, impreziosito da un lucernaio e dotato di ingresso indipendente. Sempre al piano terra, il disimpegno ospita un primo bagno di servizio finestrato.

Una scala conduce al primo piano, dedicato alla zona notte. A pochi passi dal disimpegno si trova l'atrio notte che conduce alla prima camera e a un comodo bagno. Lungo un ampio corridoio, sulla destra, si trovano 2 camere da letto spaziose, tutte con pavimentazione in parquet e ciascuna con un bagno privato finestrato, completo di doccia. In fondo al corridoio si trova la camera padronale, anch'essa con bagno privato finestrato, dotato sia di doccia che di vasca. Questo piano ospita inoltre una stanza adibita a palestra, con accesso a un'ampia terrazza dotata di predisposizione per l’installazione di una piscina. Un altro terrazzo si trova al secondo piano, da cui si può godere di una vista mozzafiato sulle montagne friulane.

Scendendo le scale, si accede al piano seminterrato, che ospita una spaziosa taverna finestrata con una cucina su misura e un tavolo da pranzo che può ospitare fino a 10 persone. Sempre al piano seminterrato si trovano l'ultimo bagno finestrato della proprietà, dotato di doccia, un deposito e la centrale termica.

Tutti i piani della villa sono collegati tra loro tramite un ascensore interno, che garantisce un facile accesso a tutti gli ambienti. L'immobile è inoltre dotato di un doppio box auto, tre posti auto scoperti e due posti auto coperti. Le tapparelle dell'unità sono elettriche, a garantire una maggiore comodità e sicurezza.

L'immobile è provvisto di un impianto fotovoltaico con sistema di accumulo della capacità complessiva di 10 KWh, il quale consente di ottimizzare l'autoconsumo dell'energia prodotta, riducendo i costi energetici e aumentando l'efficienza dell'abitazione. Inoltre è presente un impianto solare termico dedicato alla produzione di acqua calda sanitaria, che contribuisce ulteriromente al risparmio energetico e alla sostenibilità ambientale. Le tapparelle elettriche, presentano un sistema di chiavistelli per maggiore sicurezza.

La villa viene venduta completamente arredata.

Questa villa rappresenta una soluzione ideale per chi cerca un’abitazione elegante, spaziosa e ben posizionata, che unisce comfort, funzionalità e una vista incantevole sulla natura circostante.

Mostra tutto

Nelle vicinanze

Trasporto pubblico Trasporto pubblico
Codroipo
Codroipo
550 m
Codroipo - Viale Duodo (Coop)
Codroipo - Viale Duodo (Coop)
510 m
Codroipo - Piazza Giardini
Codroipo - Piazza Giardini
740 m
Scuole Scuole
ITC J. Linussio
910 m
Liceo Scientifico Marinelli
980 m
Farmacia Farmacia
Toso dr. Lorenzo
550 m
Farmacia
690 m
Bp S.N.C Di Alessandra Forgiarini E Roberto Fresco
1,2 Km
Cannistraro
1,3 Km
Ospedali Ospedali
Distretto Sanitario Codroipo
990 m
Supermercati Supermercati
SuperOne
540 m
Coop
600 m
Cadoro
1,2 Km
Lidl
1,3 Km
Eurospar
1,4 Km
Negozi Negozi
PasseParTout idea moda
590 m
Negozi
820 m
Bar Bar
Shack
280 m
Giornale & Caffè
520 m
Osteria La' di Galas
560 m
Enoteca Angolo delle Specialità
780 m
Bar alla terrazza
1,9 Km
Ristoranti Ristoranti
Ali Babà
580 m
Shanghai
640 m
Pizzaria Trattoria Al Passeggio
690 m
Lo Spirito Giusto
740 m
Trattoria Alle Risorgive
990 m
Mostra tutto

Caratteristiche

Rif.:
60996325
Piano:
3 di 3 con ascensore (Piano su più livelli)
Box:
2
Posti auto:
5
Balconi:
1
Terrazzi:
2
Mostra tutto
Prezzo Prezzo
€ 518.000
Rata mutuo Rata mutuo
€ 2.388 / mese
Spese annue Spese annue
€ 0
Proponi il tuo prezzoProponi il tuo prezzo

Classe Energetica

A2
A2
A2
A2
A2
A2
A2
A2
A2
EP invernale del fabbricato:
EP estiva del fabbricato:
Anno di costruzione:
1996
Riscaldamento:
Autonomo
Tipo impianto:
A radiatori
Tipo alimentazione:
Metano

Ti interessa visionare l'immobile?

Fissa un appuntamento  Fissa un appuntamento

Richiedi informazioni

* Questi campi sono obbligatori

Calcola il tuo mutuo

Semplice e senza impegno
Anticipo

( % )
Mutuo

( % )

pochi semplici passi

inserisci i tuoi dati
Questionario completato
Grazie per aver richiesto un appuntamento senza impegno con un nostro Consulente del Credito e Assicurativo.

Hai inserito correttamente tutti i dati necessari e a breve riceverai una e-mail con un link da convalidare per inviare i tuoi dati.
Affiliato
Quadrupio Srl
P.zza Dante Alighieri, 11 33033 Codroipo (UD)

Il nostro staff


  • Luca Finazzi
    Collaboratore

  • Suad Toromanovic
    Affiliato

  • Tiziana Tremamunno
    Affiliata
P.zza Dante Alighieri, 11 33033 Codroipo (UD)
Zona: Codroipo-Bertiolo-Camino al Tagliamento-Varmo-Rivignano-Sedegliano-Flaibano
Mostra su mappa
Affiliato
Quadrupio Srl
P.zza Dante Alighieri, 11 33033 Codroipo (UD)

2025 Tecnocasa Franchising S.p.A. - P. IVA 08365160152 - Via Monte Bianco 60/A 20089 Rozzano (MI). Ogni agenzia ha un proprio titolare ed è autonoma. Privacy policy | Policy utilizzo | Cookie policy