Casa semindipendente in vendita

Codroipo, Via Glaunicco - San Pietro
€ 68.000
5 locali 5 locali
218 Mq 218 Mq
2 bagni 2 bagni

Casa semindipendente in vendita

Codroipo, Via Glaunicco - San Pietro

Descrizione annuncio

Tecnocasa, la più grande rete di intermediazione in Europa con 2.867 punti vendita in Italia e 4.099 nel mondo, vi propone:

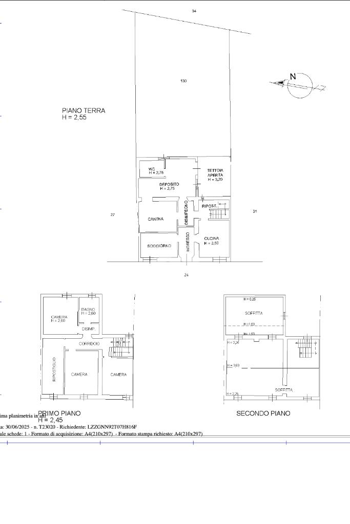
Porzione di trifamiliare disposta su due livelli, con ambienti ampi e ben organizzati che garantiscono spazi confortevoli per tutta la famiglia. L’immobile offre una distribuzione funzionale degli spazi, con una zona giorno accogliente e una zona notte riservata, ideale per chi cerca comodità e praticità.

Al piano terra si sviluppa la zona giorno composta da un’accogliente cucina abitabile, affiancata da un salotto luminoso, una taverna ampia e versatile ideale per momenti conviviali, un bagno di servizio dotato box doccia, un pratico ripostiglio temperato, una cantina e un locale deposito adiacente, comodi per uso accessorio o tecnico.

Al primo piano, raggiungibile tramite scala interna, si accede alla zona notte composta da quattro camere da letto di generose dimensioni e un bagno finestrato, recentemente ristrutturato e completo di vasca.

Esternamente la proprietà comprende un doppio box auto. Completano l’immobile un terreno privato e comode pertinenze esterne, ideali per il tempo libero e la personalizzazione degli spazi.

Il piano terra è inoltre riscaldabile tramite uno spoiler presente in cucina e una stufa a legna situata in soggiorno.

L’immobile, parzialmente ristrutturato, grazie alla sua posizione tranquilla e alla disposizione degli ambienti, si presta bene come casa vacanza o come luogo dove dedicarsi alle proprie passioni, trovando tempo e spazio per sé.

Mostra tutto

Nelle vicinanze

Farmacia Farmacia
Peano
1,9 Km
Ristoranti Ristoranti
Ristorante al mulino
1,4 Km
Trattoria Da Vanda
1,8 Km
Pizzeria Trattoria Savorgnan
2,2 Km
Trattoria da Toni
2,3 Km
Trattoria da Bepo
2,6 Km
Mostra tutto

Caratteristiche

Rif.:
61082798
Piano:
3 di 3 (Piano su più livelli)
Box:
1
Posti auto:
2
Camere da letto:
4
Arredamento:
Parziale
Mostra tutto
Prezzo Prezzo
€ 68.000
Rata mutuo Rata mutuo
€ 320 / mese
Spese annue Spese annue
€ 0
Proponi il tuo prezzoProponi il tuo prezzo

Classe Energetica

G
G
G
G
G
G
G
G
G
EP globale non rinnovabile:
281.31 kW h/m² anno
EP globale rinnovabile:
11.01 kW h/m² anno
Anno di costruzione:
1965
Riscaldamento:
Autonomo
Tipo impianto:
A radiatori
Tipo alimentazione:
Metano

Ti interessa visionare l'immobile?

Fissa un appuntamento  Fissa un appuntamento

Richiedi informazioni

Clicca su Leggi per aprire l'informativa
* Questi campi sono obbligatori

Calcola il tuo mutuo

Semplice e senza impegno
Anticipo

( % )
Mutuo

( % )

pochi semplici passi

inserisci i tuoi dati
Questionario completato
Grazie per aver richiesto un appuntamento senza impegno con un nostro Consulente del Credito e Assicurativo.

Hai inserito correttamente tutti i dati necessari e a breve riceverai una e-mail con un link da convalidare per inviare i tuoi dati.
Affiliato
Quadrupio Srl
P.zza Dante Alighieri, 11 33033 Codroipo (UD)

Il nostro staff


  • Luca Finazzi
    Collaboratore

  • Suad Toromanovic
    Affiliato
P.zza Dante Alighieri, 11 33033 Codroipo (UD)
Zona: Codroipo-Bertiolo-Camino al Tagliamento-Varmo-Rivignano-Sedegliano-Flaibano
Mostra su mappa
Affiliato
Quadrupio Srl
P.zza Dante Alighieri, 11 33033 Codroipo (UD)

2026 Tecnocasa Franchising S.p.A. - P. IVA 08365160152 - Via Monte Bianco 60/A 20089 Rozzano (MI). Ogni agenzia ha un proprio titolare ed è autonoma. Privacy policy | Policy utilizzo | Cookie policy