Casa di corte in vendita

Codroipo, Via Del Santuario - Rivolto-Lonca
€ 40.000
4 locali 4 locali
190 Mq 190 Mq
1 bagno 1 bagno

Casa di corte in vendita

Codroipo, Via Del Santuario - Rivolto-Lonca

Descrizione annuncio

Tecnocasa la più grande rete di intermediazione in Europa con 2807 punti vendita in Italia e 4022 nel mondo vi propone:

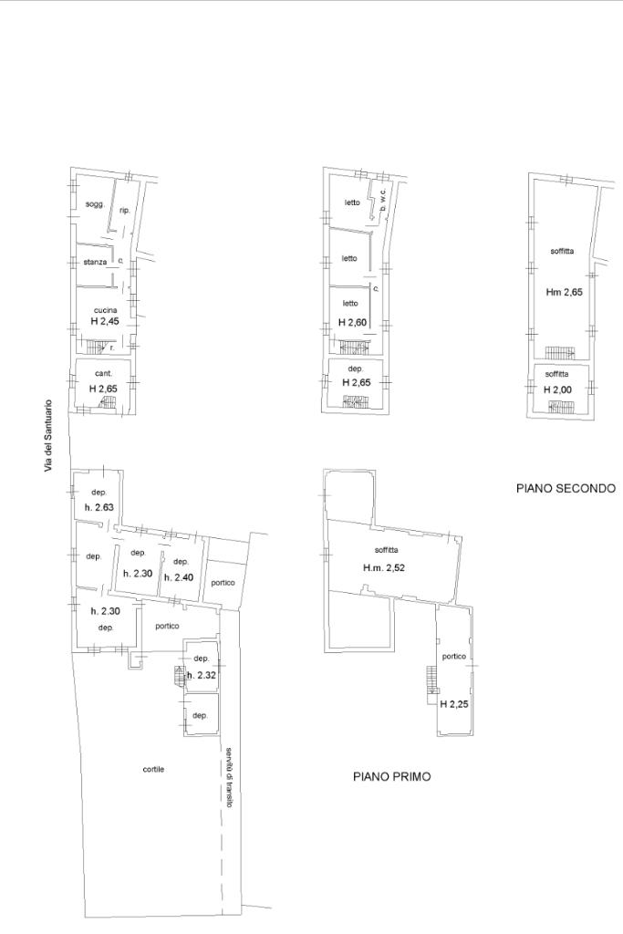
Edificato su tre livelli fuori terra, mantiene la classica disposizione dell’epoca di costruzione.

L’accesso avviene tramite un passaggio in comune, conducendo direttamente all’interno dell’abitazione. Il piano terra si compone di una stanza adiacente a un ambiente che, in origine, avrebbe dovuto servire da ingresso principale.

Completa il livello una cantina. Proseguendo, si sviluppa un ampio open space con un angolo cottura integrato, creando una zona giorno spaziosa e luminosa, da cui è ricavato un comodo deposito.

Una scala interna conduce al piano superiore, dove si trova la zona notte, composta da tre camere da letto di generose dimensioni e da un bagno situato al termine del corridoio.

L’immobile necessita di un intervento di ristrutturazione, offrendo la possibilità di personalizzare gli ambienti e valorizzare una residenza dal forte potenziale nel cuore del paese.

Mostra tutto

Nelle vicinanze

Trasporto pubblico Trasporto pubblico
Zompicchia
Zompicchia
2,8 Km
Farmacia Farmacia
Cannistraro
2,6 Km
Tilatti
2,7 Km
Ospedali Ospedali
Distretto Sanitario Codroipo
3,0 Km
Bar Bar
da Frusine
930 m
Ristoranti Ristoranti
Là di Madot
10 m
Ca' dei Angeli
1,0 Km
Il doge
1,1 Km
Agriturismo Al Ranch
2,4 Km
Il Piron dal Re
2,7 Km
Mostra tutto

Caratteristiche

Rif.:
61011965
Piano:
2 di 3 (Piano su più livelli)
Box:
1
Posti auto:
1
Camere da letto:
3
Arredamento:
Parziale
Mostra tutto
Prezzo Prezzo
€ 40.000
Rata mutuo Rata mutuo
€ 190 / mese
Spese annue Spese annue
€ 0
Proponi il tuo prezzoProponi il tuo prezzo

Classe Energetica

Questo immobile è esente da classe energetica
Anno di costruzione:
1960
Riscaldamento:
Autonomo
Tipo impianto:
A radiatori
Tipo alimentazione:
Metano

Ti interessa visionare l'immobile?

Fissa un appuntamento  Fissa un appuntamento

Richiedi informazioni

Clicca su Leggi per aprire l'informativa
* Questi campi sono obbligatori

Calcola il tuo mutuo

Semplice e senza impegno
Anticipo

( % )
Mutuo

( % )

pochi semplici passi

inserisci i tuoi dati
Questionario completato
Grazie per aver richiesto un appuntamento senza impegno con un nostro Consulente del Credito e Assicurativo.

Hai inserito correttamente tutti i dati necessari e a breve riceverai una e-mail con un link da convalidare per inviare i tuoi dati.
Affiliato
Quadrupio Srl
P.zza Dante Alighieri, 11 33033 Codroipo (UD)

Il nostro staff


  • Emrah Karamaleski
    Collaboratore

  • Ajdin Traljesic
    Collaboratore

  • Suad Toromanovic
    Affiliato
P.zza Dante Alighieri, 11 33033 Codroipo (UD)
Zona: Codroipo-Bertiolo-Camino al Tagliamento-Varmo-Rivignano-Sedegliano-Flaibano
Mostra su mappa
Affiliato
Quadrupio Srl
P.zza Dante Alighieri, 11 33033 Codroipo (UD)

2026 Tecnocasa Franchising S.p.A. - P. IVA 08365160152 - Via Monte Bianco 60/A 20089 Rozzano (MI). Ogni agenzia ha un proprio titolare ed è autonoma. Privacy policy | Policy utilizzo | Cookie policy